B.2008 Unit 2
€ 800.000,00
Omschrijving
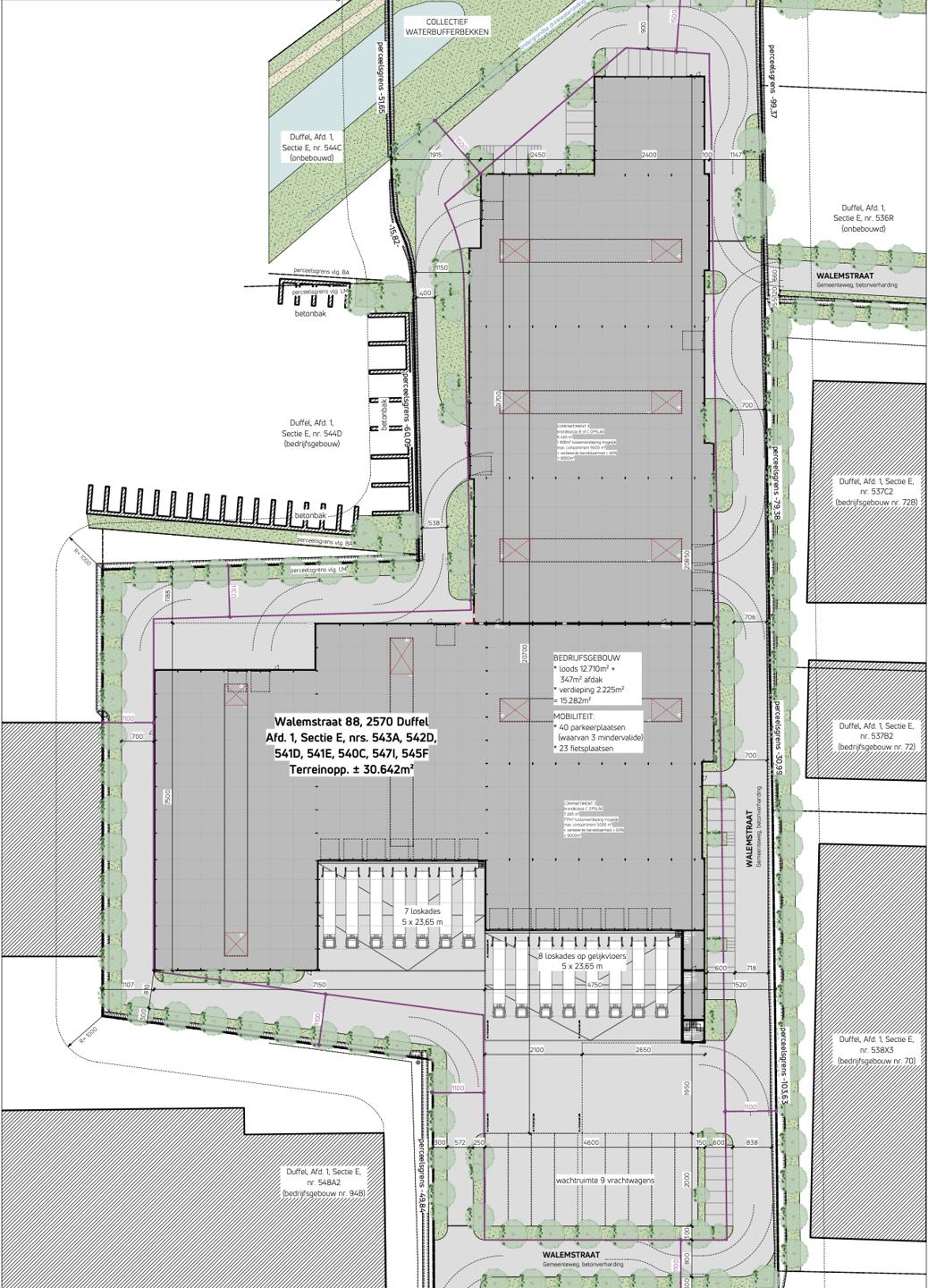
Nieuwbouw industriële ontwikkeling te Mechelen Noord. De volledige site bestaat uit 5 bedrijfsverzamelgebouwen voor een totale bebouwde oppervlakte van ca. 22.000 m2. Momenteel zijn er nog slechts 2 kleine units beschikbaar op de site. Oplevering is voorzien tegen het eerste kwartaal van 2025.
De gebouwen worden casco opgeleverd, maar verdere afwerking kan besproken worden met de ontwikkelaar.
De site is vlot bereikbaar en ligt op slechts 3 kilometer van de op- en afrit Rumst van de E19 Antwerpen – Brussel.
Oppervlakte
Unit 2: 500 m²
Vastgoedinformatie
Stedenbouwkundige vergunning: uitgereikt
Stedenbouwkundige bestemming: industriezone klasse 2
Dagvaardingen: geen dagvaarding uitgebracht
Voorkooprecht: geen voorkooprecht aanwezig
Verkavelingsvergunning: geen verkavelingsvergunning aanwezig
Watertoets
P-score: D
Voorwaarden
Nog beschikbare oppervlakte:
Unit 2: € 800.00,00(Prijzen zijn exclusief btw)
Beschikbaarheid
Beschikbaar bij oplevering, voorzien in het eerste kwartaal van 2025.
Specificaties
Eigenschappen | |
|---|---|
| Type | industrieel |
| Woonoppervlakte (bruto) | 500m² |
Wettelijk verplichte vermeldingen |
|---|















