C.1263
Omschrijving
Strategisch gelegen op de hoek van de Lilsedijk en de Toekomstlaan, bieden wij een projectgrond met afgeleverde bouwvergunning te koop aan. De site behelst een totale oppervlakte van ca. 8.353 m2 en geniet van een vlotte ontsluiting naar Antwerpen, Turnhout en Nederland via de E34. Op heden is er voor dit terrein een definitieve, uitvoerbare vergunning afgeleverd voor realisatie van een gebouw op maat. Afwijkingen van vooormelde oppervlakten mogelijk, doch afhankelijk van wijzigingen vergunning.
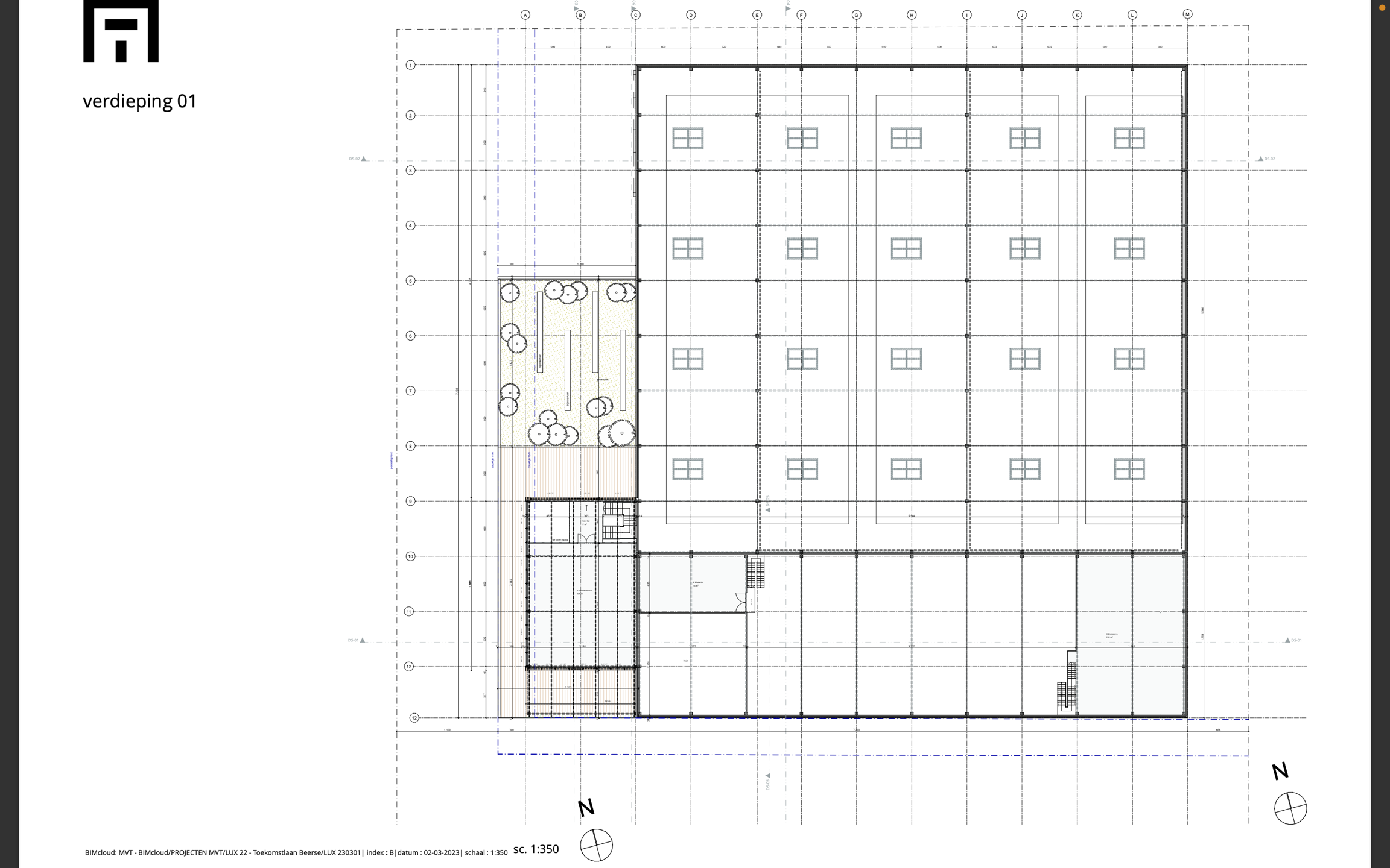
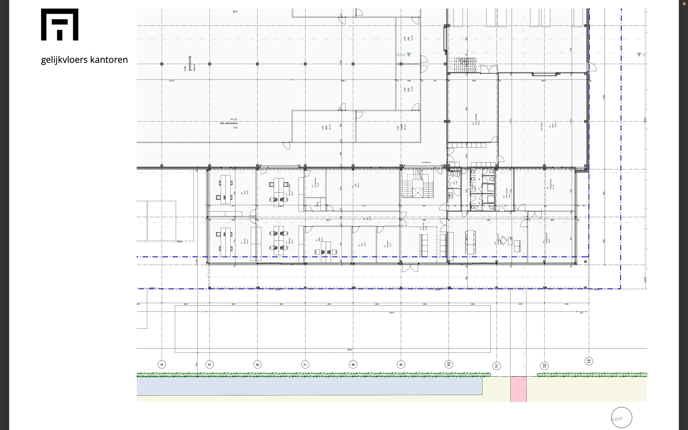
Totale terrein oppervlakte: ± 8.353 m2
Productieruimte/werkplaats: ± 3.182 m2
Opslagruimte: ± 1.018 m2
Kantoorruimte: ± 533 m2
Polyvalente ruimte: ± 255 m2
Parking: ± 30 parkeerplaatsen
Lastenboek op aanvraag
Vergunde bouwplannen op aanvraag
VASTGOEDINFORMATIE
Stedenbouwkundige vergunning: uitgereikt
Stedenbouwkundige bestemming: industriezone
Dagvaardigen: geen dagvaardiging uitgebracht
Voorkooprecht: geen voorkooprecht
Verkavelingsvergunning: geen verkavelingsvergunning aanwezig
Watertoets
P score: D
G Score: D
Afgebakend overstromingsgebied: nee
Afbakende oeverzone: nee
Risicozone voor overstroming: nee
VOORWAARDEN
VERKOOPPRIJS OP AANVRAAG
OVERDRACHT AANDELEN
Specificaties
Eigenschappen | |
|---|---|
| Type | industrieel |
| Grondoppervlakte | 8353m² |
| Woonoppervlakte (bruto) | 4988m² |
Wettelijk verplichte vermeldingen |
|---|














