A.2367
€ 495.000,00
Omschrijving
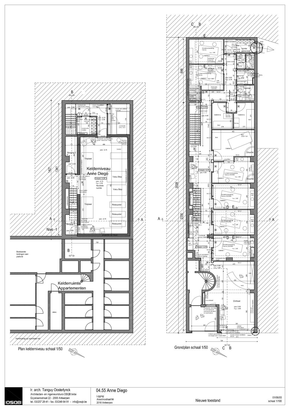
Het betreft een handelspand gelegen in de Anselmostraat, ingericht als een schoonheidssalon met onthaal, behandelkamers, sanitair en douches.
|
Buitenruimte |
Koer |
Ca. 16 m2 |
|
Gelijkvloers |
Onthaal, 9 cabines, berging en sanitair |
Ca. 200 m2 |
|
Kelder |
Refter, keuken, polyvalente ruimte |
Ca. 100 m2 |
Deel dit pand
Specificaties
Eigenschappen | |
|---|---|
| Type | commercieel |
| Woonoppervlakte (bruto) | 316m² |
Wettelijk verplichte vermeldingen |
|---|








